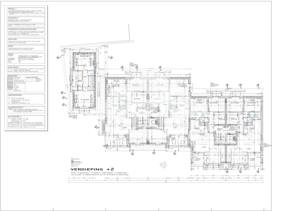
We hebben onze medewerking verleend aan opmeting bestaande gebouwen voor sloping en de uitwerking van voorontwerp tot bouwaanvraag & uitvoeringsdossier.